
About This Proposal
The purpose of this page is to give Wrington residents quick access to the planning information for the proposals at The Glebe. This includes the site map, layout drawings and a direct link to the North Somerset Council planning portal. All updates relating to this site will be added here so residents can stay informed and find documents easily.
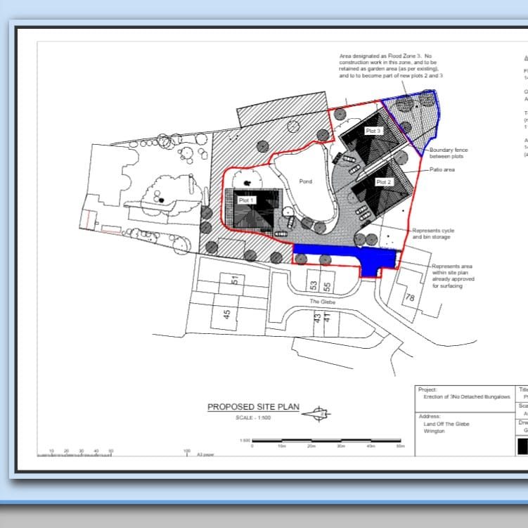
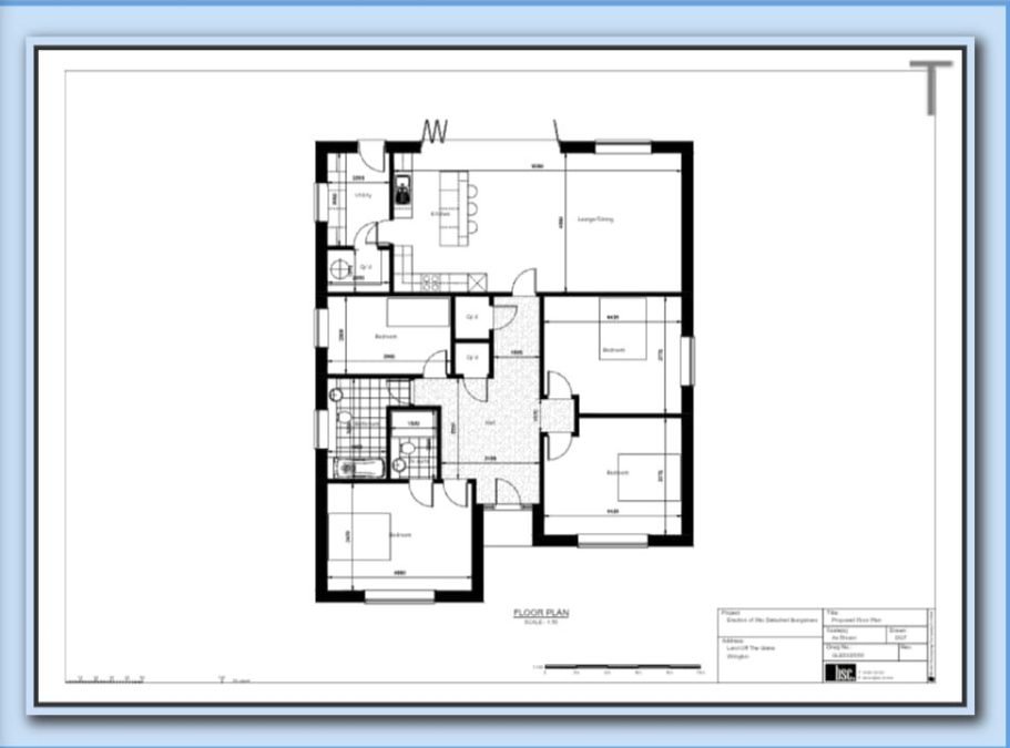
To the sides are the key images from the current planning application. The first shows the full proposed site map. The second shows the layout of each bungalow. These images are included to help residents understand the scale of the proposal and how the development is arranged on the land.
Key Information for Residents
We encourage all residents to view the plans and submit comments to North Somerset Council during the consultation period. Every response is read, and the strength of Wrington’s previous responses has been recognised repeatedly.
View the Full Planning Application
Residents can view all documents, drawings and updates directly on the North Somerset Council planning portal. Comments can also be submitted through that site while the consultation period remains open.
Planning application reference: 25/P/2382/FUL
Address: Land Off The Glebe, Wrington BS40 5LX

